




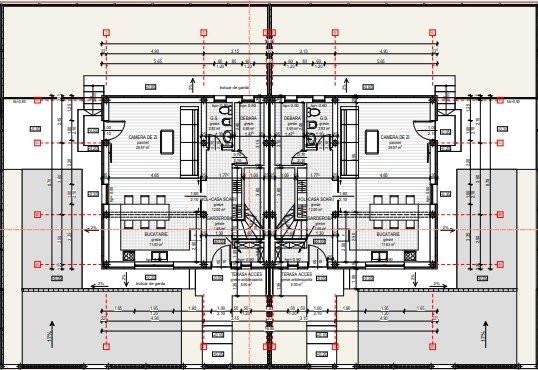
ImoPerformance propune spre vanzare casa tip duplex, situata in zona Cetatea Fetei din loc. Floresti. Casa este amplasata intr-o zona aerisita, de case, in proximitatea padurii, cu o priveliste extrem de frumoasa. Proprietatea este structurata pe parter si etaj si este compartimentata astfel:
-la parter sunt living cu bucatarie open space si loc pentru servirea mesei, cu posibilitatea de a delimita bucataria, hol+casa scarii, 1 baie, 1 debara, 1 garderoba si 1 terasa;
- la etaj avem 1 dormitor matrimonial cu baie si dressing, 2 dormitoare, 1 baie, 1 hol si 1 balcon.
Proprietatea se va preda la stadiul semifinisat cu peretii gletuiti, instalatiile trase la pozitie, cu sistem de incalzire in pardoseala, iar curtea va fi imprejmuita si amenajata.
Aceasta casa este foarte bine compartimentata si este optima pentru o familie care apreciaza linistea naturii, in proximitatea orasului.
Termenul de finalizare este luna Mai 2022.